









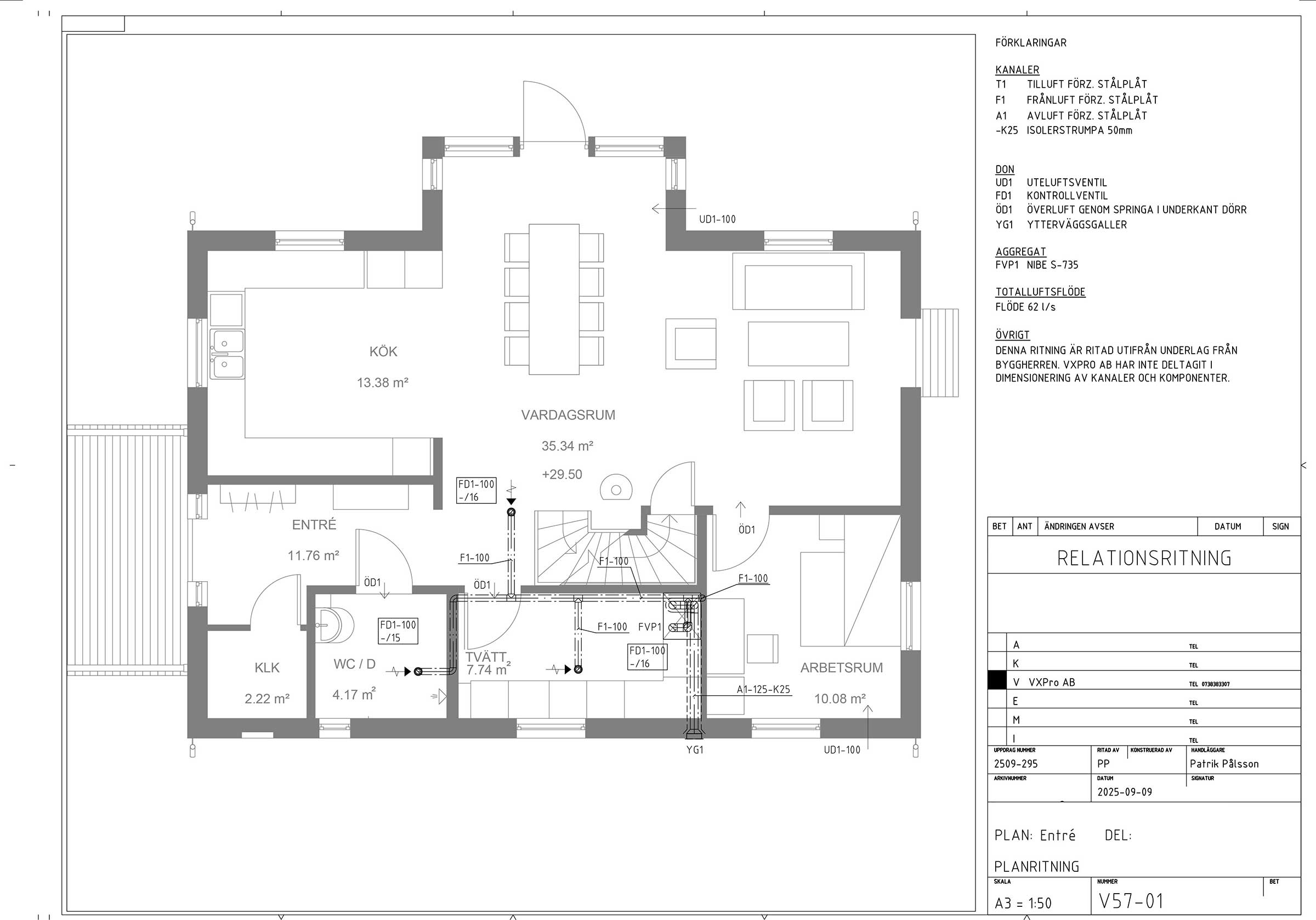
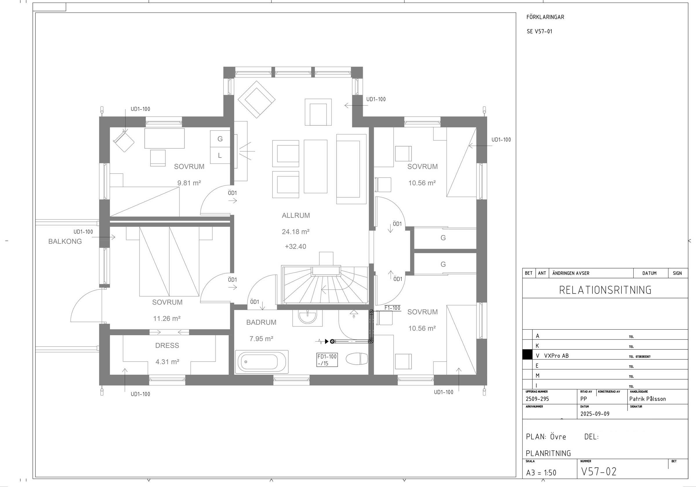
Relationsritning Stockholms Län, Åkersberga
Vi hjälper kunden med relationsritningar för ventilation inför injustering och OVK. Ritningarna gjordes med underlag via mejl och blev klara dagen efter beställning.
2025-09

Installation av FTX i Västra Frölunda
Vi hjälper kunden med projektering, ritningar, bygganmälan, installation, driftsättning, injustering och OVK-besiktning i en villa. Nu har kunden fått slutbesked efter att ha lämnat in enkel kontrollplan och OVK-protokoll.
2025-09

Kallebäck, Göteborg
Utbyte av 55 takfläktar, kartläggning av kanaler i murstockar, proppning av oanvända kanaler och injustering av luftflöden. Efter åtgärderna godkänd OVK.
2025-05

Krokslättsgatan, Mölndal
Felsökning av låga flöden i samband med OVK. En av orsakerna var en feldimensionerad kanalanslutning som orsakade ett högt tryckfall. Huvudkanalen som var cirkulär 315mm ersattes med en rektangulär 800x400 kanal. Stammar anslöts på denna och förseddes med stam-spjäll. Efter injustering uppnåddes önskade flöden.
”VXPro lokaliserade snabbt felet i vårt ventilationssystem, projekterade nya kanaler och byggde om delar av kanalsystemet på ett proffsigt och kostnadseffektivt sätt. Vi är mycket nöjda med både resultat och samarbete.”
2025-03

Viktoriagatan, Göteborg
Ersättning av trasiga takfläktar med nya energieffektiva enheter med integrerad tryckstyrning. Luftflöden injusterades efter installation.
2024-05

Solgatans förskola, Lilla Edet
Ombyggnad av fläktrum, montering av nya till- och frånluftsdon, installation av ny kombihuv samt fullständig injustering inför OVK-besiktning.
2023-08

Ventilationsprojektering – Borås
Vi tog fram ventilationsprojektering och bygglovsritningar för ett nybyggt enfamiljshus i Borås. Kunden fick även hjälp med att välja och beställa ett FTX-aggregat anpassat efter husets behov.
2022-10

Värmepump – Frölundagatan 35
Larmgränserna för värmepumpen var felinställda, vilket orsakade upprepade stopp och hög energiförbrukning. Efter felsökning och justering kunde systemet återgå till normal drift med förbättrad prestanda och stabil varmvattenproduktion.
2022-09

OVK-besiktningar för Stena Fastigheter
Som underkonsult till Energi & Miljöteknik genomförde vi OVK-besiktningar i ett flertal lokaler för Stena Fastigheter i centrala Göteborg. Projektet omfattade allt från förskolor till bostadshus, med kontroll av ventilationssystemens funktion och dokumentation enligt gällande krav.
2022-07 – 2022-09

Kallebäck – frisör och pizzeria
Två separata FTX-system besiktigades i kommersiella lokaler. Luftflöden kontrollerades, och protokoll upprättades för inlämning till kommunen.
2022-05

Idunagatan – villa
En gammal takfläkt med driftproblem byttes ut mot ny enhet. Efter installation utfördes injustering och verifiering av luftflöden.
2022-05

Frölundagatan 37
Sex lokaler med FTX-system besiktigades. Mätutrustning och driftlägen granskades för att säkerställa funktion enligt krav.
2022-05

Munkebäck – Ättehögsgatan 2
OVK i flerbostadshus med 36 lägenheter med F-system. Återkommande avvikelser åtgärdades i samråd med förvaltare.
2022-04

Lackarebäck – Brynolfsgatan 6
Fem lägenheter och två lokaler OVK-besiktigades. Injustering krävdes i flera lägenheter för godkännande.
2022-04

Kungsladugård – Skytteskogsgatan
114 lägenheter med självdrag genomgick OVK. Fokus låg på frånluftskanaler och takhuvar.
2022-04

Soläng äldreboende, Lödöse
Fyra FTX-system genomgick ombyggnad, injustering och slutlig OVK-besiktning. Projektet omfattade flera etapper.
2022-03

Fässbergshemmet, Mölndal
Kartläggning och injustering av luftflöden i fem FTX-system. Utfördes som underkonsult med dokumentation till OVK.
2021-12